Come See Us

289 Centennial Dr

Email us

Give Us A Call

(208) 829-2829

Highland

Highland

Highland

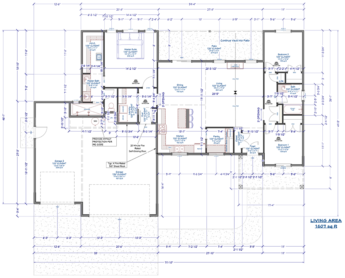
  • 3 Bedrooms
  • 2 Bathrooms
  • 1,607 Sq Ft
  • 3 Garage

Description

This stunning single-story ranch-style home exudes modern elegance and simplicity. Featuring a spacious, symmetrical design, the home is perfect for those seeking both functionality and style. Its exterior is a harmonious blend of light grey siding and distinctive stone accents that span the front façade, providing a grounded, sophisticated look.

The home boasts a wide front entrance with a welcoming porch framed by clean wooden columns, leading to an eye-catching wooden door. The attached three-car garage on the left side ensures plenty of space for vehicles and storage, with a sleek, matching design that complements the home’s clean lines.

Thoughtfully placed windows allow ample natural light to enter the living spaces, offering a cozy, well-lit interior. The gable roofline adds a traditional touch, while the modern materials and color palette bring this home into the contemporary era. Ideal for families or those looking for a spacious retreat, this ranch-style home is the epitome of modern living with a timeless appeal.